Shelf Ready ADU Program
What is an ADU?
An Accessory Dwelling Unit or ADU is an attached or detached dwelling unit that provides complete independent living facilities (permanent provisions for living, sleeping, eating, cooking, and sanitation) for one or more persons and which is located on a lot with a proposed or existing primary dwelling.
Looking for a faster, low-cost way to build a detached accessory dwelling unit (ADU)?
Thanks to a grant awarded to the County by the State Department of Housing and Community Development (Local Early Action Planning "LEAP" Grant), the County of Sacramento has a selection of detached ADU plans available for use by County of Sacramento residents (unincorporated areas only).
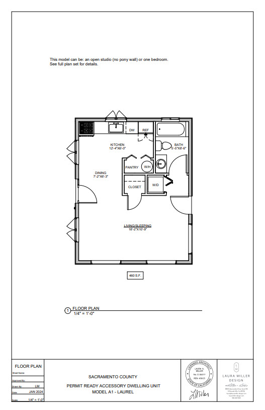
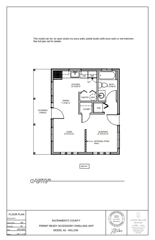
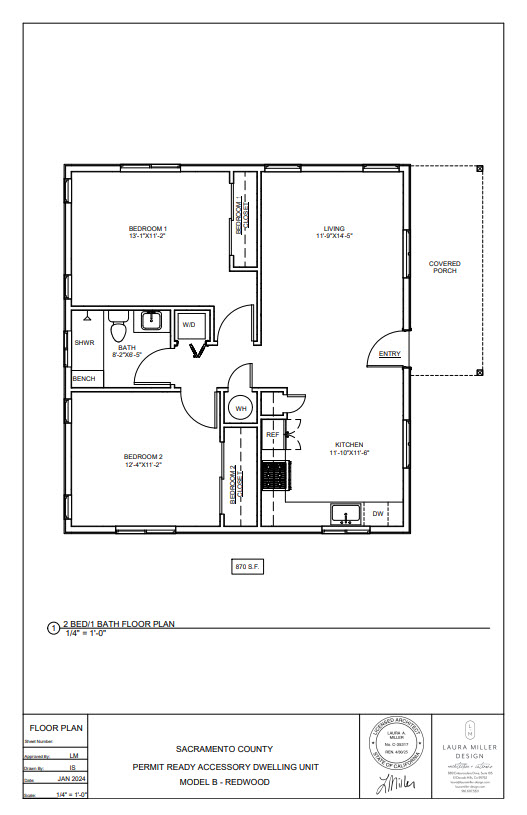
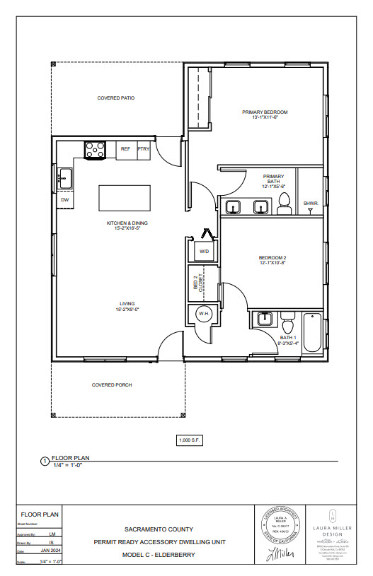
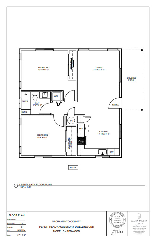
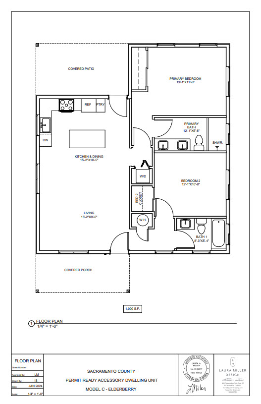
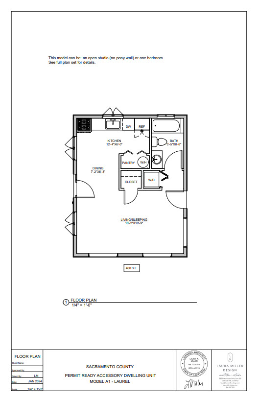
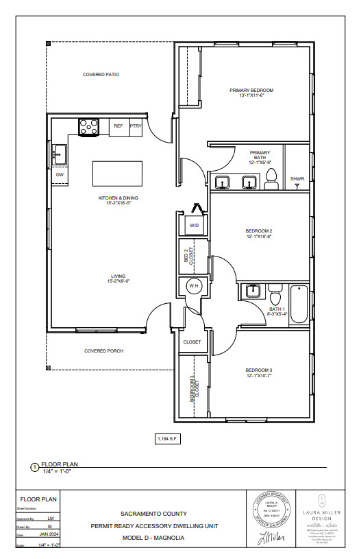
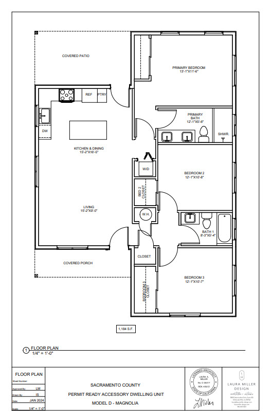
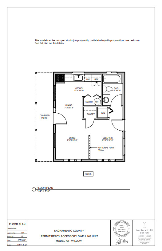
The “Shelf Ready” ADU plans offered through the program include a 460-square foot studio/one bedroom unit, an 870-square foot two-bedroom unit, a 1,000 square-foot two-bedroom unit, and a 1,184 square-foot three-bedroom unit. These ADU plans have been plan checked by Building Permits and Inspections (BPI) to meet the 2022 California Residential, Electrical, Mechanical, and Plumbing Code requirements, including energy calcs, meaning a stream-lined permit process and significant savings for the interested ADU owner!
Floor Plans
How to Apply
-
Prepare a Plot Plan
A Plot Plan can be prepared by a design professional, contractor, or homeowner. See our Sample Plot Plan. To verify applicable setbacks, please see our ADU Handout or contact SacPlan@SacCounty.gov.
Plot Plan Requirements:
- Plot plan needs to be a scaled drawing. (i.e. 1"=10'; ¼"=1' etc.)
- Label and dimension property lines and all structures including pools.
- Show all existing structures on the parcel, including proposed ADU.
- Show the “use" of all structures on the parcel. (i.e. shed, barn)
- Show dimensions of all structures and distance to property lines.
- Show and identify all public and private roadways. (i.e. streets, sidewalks)
- Dimension and identify all easements.
- Show the proposed location of the ADU. Show all utilities to and from ADU. (i.e. water, sewer, electrical)
- Plot plan needs to be a scaled drawing. (i.e. 1"=10'; ¼"=1' etc.)
-
Prepare Solar / PV Plans (required for all models except A1 & A2)
ADU models B- Redwood, C- Elderberry, D- Magnolia all require a Photovoltaic system. The applicant is responsible for providing PV plans. These plans can be prepared by a registered design professional or the contractor performing the work. A separate Miscellaneous permit will be issued for the PV system at additional cost.
Note: PV plans can be deferred, however plans need to be submitted, approved and issued prior to 004 or Rough Frame inspection.
-
Complete Hold Harmless Agreement
Please read and complete the Hold Harmless Agreement.
-
Apply for a Building Permit
Submit for the building permit on-line through the Citizen Access Portal. When completing the application include in the description the model of the ADU you are selecting (ex. A1-Laurel).
Important Notes
- ADUs greater than 750 square feet are subject to impact fees. Contact dssgeneralinfovm@saccounty.gov for more details.
- Standard Building fees apply to all permits using Shelf Ready ADU plans
- These Shelf Ready ADU plan sets can only be used in unincorporated Sacramento County.
- Customer is required to submit to the local fire jurisdiction in your area for review and potential requirements. This may require a separate fire department review, permit and fees.
- The plans have been reviewed and approved for Premanufactured Engineered Roof Trusses. The truss calcs are included with the plan set when the permit is issued. There are no changes or alterations to the roof trusses allowed.
- Outside of adding additional electrical receptacles, lights or switches; the plans cannot be modified beyond any floor plan options provided in the shelf ready plans (Models A1 and A2). Exterior color and all interior finishes (paint, counters, flooring, cabinets, etc.) are at the discretion of the customer.
For additional information and general questions, contact us at 916-875-5296.
Related Content
Accessory Dwelling Units (ADU) and Junior Accessory Dwelling Units (JADUs)
Get more information with a comprehensive housing-element guide to assist jurisdictions in creating comprehensive housing elements.
SacCounty Announces Free Shelf Ready ADU Plans
Sacramento County now has a selection of detached accessory dwelling unit (ADU) plans available for use by residents who live in the unincorporated part of the County, free of charge!
Our Shelf-Ready ADU Plans Are a Hit with Residents
Sacramento County’s new shelf-ready ADU plans have been met with enthusiasm from residents in the unincorporated areas, with the first units already in the construction phase.









